产品分类
联系我们
服务热线:013815945886
靖江市喜盈门制造有限公司
联系人:顾钢彪
手机:013815945886
电话:0523-84913021
传真:0523-84805286
邮箱:jsxym@jsxym.cn
地址:江苏省靖江市城北园区新一路16号
靖江市喜盈门制造有限公司
联系人:顾钢彪
手机:013815945886
电话:0523-84913021
传真:0523-84805286
邮箱:jsxym@jsxym.cn
地址:江苏省靖江市城北园区新一路16号
您所在的位置:首页
> 产品展示
产品展示
扁布袋除尘器 |
|
扁布带除尘器
简介
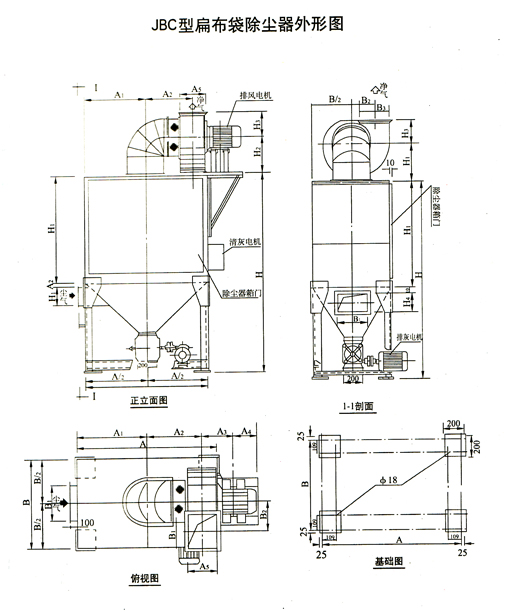
扁布袋除尘机组是在水电部华北电力设计院研制的JBC--ⅠB型的基础上进行改进而成的新型系列除尘机组。 应用范围 该除尘机组适用于电力、水泥、建材、化工、冶金、矿山等行业的防尘工程。它具有体积小,结构紧凑、噪声低、使用方便可靠等优点。尤其适用于各种料仓、筒仓及转料点的除尘,除尘器除下来的灰尘可经灰斗直接排入料仓、筒仓或皮带上。 原理 含尘气体由除尘器下部进风口进入除尘器,经过滤袋过滤,将粉尘附在外表面上,清洁空气经过布袋由风机排出。除尘器经一定时间运转,滤袋表面积尘量也就增加,当滤袋阻力100毫米水柱时,就要进行清灰。清灰时间约为20秒。清灰的间隔时间决定于含尘浓度,并且通过实际运行来确定清灰的间隔时间,也可由人工操作清灰电动机,使积在滤袋表面的灰尘被震脱掉,以达到清灰的目的。清灰时风机要停止运行,根据需要可增设联锁装置,使清灰自动化。清下来灰尘通过灰斗经排灰阀排出。 除尘器型号、规格及装配方式: ![]() ![]() ![]() ![]() |
| |





